
GESUNDHEITSZENTRUM
GRONAU
WETTBEWERB, NEUBAU, 2024 // ZUSAMMENARBEIT MIT STUDIO SOZIA // MITARBEIT: Lennart Lippert // VISUALISIERUNG: STUDIO SOZIA // TRAGWERK: C4 Engineers Gmbh // BRANDSCHUTZ: hhpberlin // ENERGIEKONZEPT: Transsolar KlimaEngineering // HLS: Ingenieurbüro für Gebäudetechnik Uwe Häberle







Leitidee & Entwurfskonzeptes
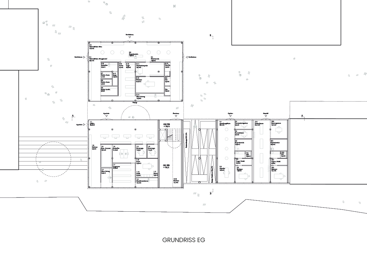
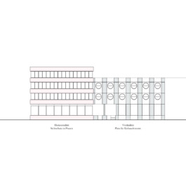
Im Zentrum von Gronau an besonders prägnanter städtebaulicher Situation soll am Kurt-Schumacher-Platz ein Gesundheitszentrum entstehen, das als repräsentativer Auftakt des Quartiers enorme Wichtigkeit erhält. Ziel des Entwurfes war es demnach nicht nur eine zeitgemäße gestalterische Antwort auf die besondere Lage zu finden, sondern diese mit einer klaren Adressierung und einer größtmöglichen Flexibilität im Inneren zu paaren. Während das Erdgeschoss möglichst offen durch große Verglasungen und Passagen als Vermittler der städtischen Räume agiert, bieten die gewählten Fassaden der Obergeschosse mit horizontalen und vertikalen opaken Elementen eine Vielzahl an Anschlussmöglichkeit für unterschiedliche Nutzungen und adäquaten Sichtschutz. Die gewählte bauliche Struktur besitzt einen hohen Grad an Flexibilität – zum Einen sind verschiedene Nutzungsmöglichkeiten für medizinische Einrichtungen und eventuelle Änderungen in den Anforderungen der Mietflächen während des Betriebs möglich, zum Anderen werden sogar Nutzungen außerhalb des Ärztehaus wie Büro, Wohnen oder Hotel denkbar. Dabei unterscheiden sich die Nutzungen in ihrem Flächenbedarf: großflächige Einheiten für Arztpraxen und Büros sowie kleinteilige Strukturen für Gemeinschaft, Wohnen oder Boardinghouse. Dies spiegelt sich in der unterschiedlichen Erschließung und den Tragrastern der beiden Bauten wider.
Städtebauliche Einbindung
Das Entwurfsgrundstück befindet sich zentral in der Innenstadt von Gronau, eingebettet zwischen dem Inselpark im Norden und dem Stadtpark im Süden. Das Baufeld ist L-förmig und besteht aus zwei rechteckigen, unterschiedlich hohen Baukörpern. Der dreigeschossige und demnach niedrigere Baukörper fügt sich harmonisch mittels gleicher Traufhöhe in die Nachbarbebauung ein und bildet eine fortlaufende Kante zum Kurt-Schumacher-Platz. Der höhere, viergeschossige Baukörper ist dazu orthogonal gedreht und markiert mit seiner Höhe und prägnanten Lage den Zugang zum Quartier. Um wirtschaftliche und gut belichtete Grundrisse zu ermöglichen, wird die gesamte Breite des Baufelds nicht ausgereizt.
Nachhaltigkeit und Kreislaufwirtschaft
Konstruktionen im Bauwesen verursachen etwa 11% der weltweiten Treibhausgasemissionen. Holz als nachwachsender Baustoff speichert CO2 und vermeidet den Einsatz von emissionsintensiven Materialien wie Stahl und Zement. Die Nutzung von Holz anstelle von Stahlbeton kann 30-60% der CO2-Emissionen einsparen. Die Klimawirkung von den verwendeten Stahlbetonbauteilen kann durch Recycling-Beton und klimafreundliche Zemente verbessert werden. Der kreislaufgerechte Holzbau ermöglicht sortenreinen, materialerhaltenden Abbau am Lebenszyklusende des Gebäudes, was in der Ökobilanz erhebliche CO2-Einsparungen gegenüber Stahlbeton bewirkt.
Klima- und Energiekonzept
Das Klima- und Energiekonzept zielt darauf ab, den Aufwand für Bau und Betrieb des Gebäudes zu minimieren und gleichzeitig hohe Nutzungsqualität, Nachhaltigkeit und Wirtschaftlichkeit zu gewährleisten. Es setzt auf minimale Gebäudetechnik für flexiblen, robusten Betrieb. Beheizt wird das Gebäude mit einer energieeffizienten Fußbodenheizung und einer Luft-Wasser-Wärmepumpe auf dem Dach. Alternative Energien wie Geothermie sind zu prüfen. Natürliche Belüftung und dezentrale Fassadenlüfter sorgen für Frischluft; außenliegender Sonnenschutz und Deckenventilatoren verbessern den Komfort. Auf mechanische Kühlung wird weitgehend verzichtet, sie kann jedoch bedarfsweise ergänzt werden. Photovoltaik-Module auf dem Dach erzeugen etwa 65 MWh Strom pro Jahr, etwa die Hälfte des Gebäudebedarfs. Optional können Fassaden-PV-Module die Eigenstromproduktion weiter erhöhen.