
AUSZEICHNUNGEN
STAATSPREIS BAUKULTUR BW ANERKENNUNG
THANNSCHER HOF
BEHUTSAME SANIERUNG UND UMNUTZUNG EINES KULTURDENKMALS // ZUSAMMENARBEIT MIT KOCHHAN + WECKBACH ARCHITEKTEN // BAUHERR: THANNSCHER HOF UG UND HERRENHAUS GBR // FOTOGRAFIE CHRISTIAN BUCK // HEIDELBERG // 2017 - 2023
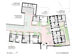
EINBLICK Der 300 Jahre alte barocke und denkmalgeschützte Thannsche Hof mit Herrenhaus und Ökonmiegebäuden im historischen Ortskern von Heidelberg Rohrbach war lange Zeit unbewohnt und unbewirtschaftet. Heute ist das Gebäudeensemble in Figur, Material und Gestaltung zwar erhalten, aber transformiert und neu zum Leben erweckt worden. Die Entwicklung, Planung und Realisierung wurde in enger Zusammenarbeit mit dem Amt für Baurecht und Denkmalschutz in Heidelberg und dem Landesdenkmalamt in Karlsruhe abgestimmt.
HERRENHAUS Das Herrenhaus als historisches Wohnhaus ist die östliche Begrenzung des Hofes und bildet das Zentrum der Anlage. Unter dem nördlichen Flügel befindet sich ein etwa fünf Meter hoher Gewölbekeller auf dessen Vorgängergebäude 1710 in barocker Bauweise mit Holz-Fachwerk-Außenwänden aufgestockt und das Gebäude in seiner heutigen symmetrischen ergänzt wurde. Alle Wohneinheiten im Herrenhaus sind im Bestand saniert und in die ursprünglichen Strukturen zurückgebaut. Der 300 Jahre alte Dachstuhl mit Sprengwerken ist aus Eichenholz gezimmert - nachweislich aus heimischem Rohrbacher Wald. Dieser ist instandgesetzt und sichtbar erhalten und darüber mit einer stabilisierenden neue Konstruktion energetisch verbessert.
STÄLLE Südlich des Hofes wurden Anfang des 19. Jahrhunderts Stallungen erbaut. Die Massivbauten aus Sand- und Backstein mit darüberliegenden Kappen- und Holzbalkendecken wurden trockengelegt und mit substanzerhaltende Maßnahmen in ihrer Bestandskubatur als Einfamilien-/Reihenhäuser mit Flächen von circa 100-140 m² umgebaut und saniert. Die Außenwände sind von Innen mit Calciumsilikatplatten belegt, um so die komplette Bestandsstruktur der außen als Stein- und Holzwände zu erhalten. Die Dachstühle sind nach den aktuellen energetischen Anforderungen in Holz erneuert. Die vier Einheiten sind mit Brennstoffzellen-Heizungen zur Strom- und Wärmeerzeugung ausgestattet.
REMISE Auf Nordseite des Hofes stand zur Lagerung von Maschinen und bäuerlichen Handwerksgeräten errichtet. Die mittlere erbrechtlichen Aufteilung ist aufgenommen und als Wohn-Doppelhaus umgebaut. Der massive Sandsteinsockel ist erhalten und ebenfalls von Innen gedämmt. Die darüberliegende Holzkonstruktion mit Holzbalkendecken und Holz-Außenwänden sind aus statischen Gründen ab- und wieder neu aufgebaut und somit energetisch hochwertig gedämmt. Die Remisen-Doppelhaushälften sind wie die Stallhäuser mit einer Brennstoffzellenheizung ausgestattet und verfügen über Regenwasserspeicher unter den Vorgärten, welche für die Gartenbewässerung und die Toilettenspülung verwendet werden.
SCHEUNE Die große und leicht zurückgesetzte Scheune auf nordwestlicher Seite des Hofes wurde Mitte des 19. Jahrhunderts erbaut. Auf Grund der grenzständigen Brandwände ist der komplett zweistöckige Sockel des Gebäudes zu Wohnzwecken nicht nutzbar und wurde für die notwendigen Stellplätze der neu gewonnenen Wohnflächen mit einem dreigeschossiges Stellplatzparksystem als kompakte Lösung in der Scheune ausgebaut. In diesem Bereich befinden sich ebenfalls die Abstellräume der verschiedenen Einheiten.
AUSBLICK Die Hofanlage ist in ihrem äußeren Erscheinungsbild erhalten geblieben. Die Umbaukultur ist in der Hauptsache durch Umnutzungen und Materialtransformation entstanden. Dies gilt insbesonders für die Stallgebäude und die Remise, die bei den Ergänzungsbauten und Instandsetzungen mit dem Holz der alten Scheune erbaut sind. Alte Mauersteine sind gesäubert an unterschiedlichen Stellen wieder zum Einsatz gekommen und die neue Hofgestaltung besteht größtenteils aus altem, historischem Pflaster. Nach Fertigstellung aller Häuser und Wohnungen ist der Hof von vielen verschiedenen Generationen bewohnt und bildet als neues Zentrum einen schönen Ort zum Austausch und Zusammenleben.












